Gubbagropen - Etapp 1 - Planering - Juli till augusti 2021

Viktiga verktyg för etapp 1.
Uppmätning, grovskisser och konstruktion av pappstomme.
Förebilden står ju kvar och finns på 5 minuters gångavstånd så kameran kommer flitigt till användning för att samla både översikt och speciella detaljer.Konstruktion, ritningar och fasadutskrifter görs med programmet Corel Draw.
Etappen avslutas med att skriva ut delarna till stommen på vanligt A4-papper som limmas på 1 mm kartong som sedan skärs till i olika bitar som skall passas ihop.

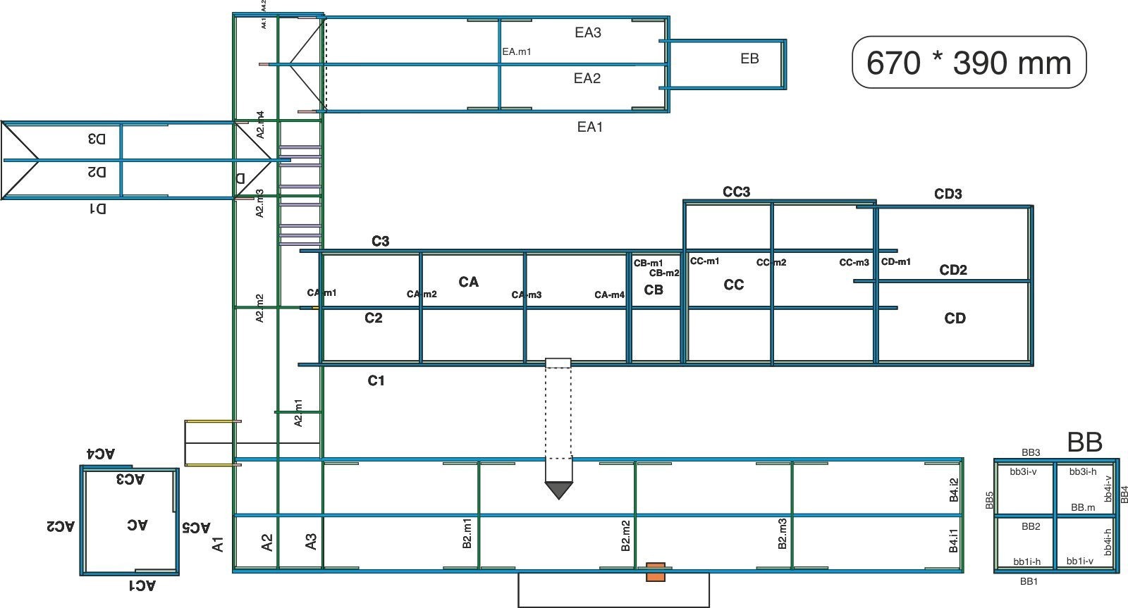
Med hjälp av flygfotot, fotografierna och egna mätningar ritar jag en hyggligt skalenlig plan över komplexet.
Placerar ut och namnsätter husen, stommens samtliga ytterväggar och stödväggar sedda från ovan.På det viset kan jag senare hålla reda på stommens alla delar.

Nu gör jag ett första varv runt byggnaderna och gör en grovskiss av samtliga fasader med placering av fönster- och dörröppningar.En del justeringar kommer att behövas lite allt eftersom i översiktsplanen ovan

Första resultatet blir en lite sladdrig provmodell byggd med vanligt skrivarpapper för att se om kompletxet kommer att passa i gropen.
Röda markeringar är slitsar som skall skäras ut där delarna skall träs över varandra. Gula markeringar markerar mellanrummen mellan extraväggarna när de limmats på ytterväggarna
Från skisserna kan jag nu konstruera stommens delar med de skåror och slitsar som behövs för att sätta samman stommen.I exemplen framöver visar jag bara den lilla nätta utbyggnaden som jag kallar för Hus BB.
Grå ytor är ytterväggar
Blå ytor är melllanväggar.
Gröna ytor är extraväggar som limmas på insidan för att skapa invändiga spår för stadig montering
